1. Gärten
2. Öffentliche Institutionen
3. Sport und Großprojekte
4. Büro und Gewerbe
5. Wettbewerbe
6. Archiv
   
  privatgarten klotzenmoor
   

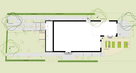
Ort: Hamburg
Bauherr: , Hamburg
Landschaftsarchitekten: Bauüberwachung Maxie Strauch, Hamburg

Planungsinhalte: Entwurf für die Einbindung von Wohnen für Innen und Außen an einer gründerzeitlichen Stadtvilla. Schaffung eines separaten Eingangs der Erdgeschosswohnung sowie Umgestaltung des Wohnhofs mit Terrasse, Kräuter- und Gemüsebeeten am ehemaligen Atelier.
 

Bearbeitungszeitraum: November 2007 bis Juni 2008Leistungsphasen (HOAI): 5 bis 8Bausumme: 60.000,00 Euro