 |
Ort: Oberursel
Architekten: Hartfil Steinbrinck,
Hamburg
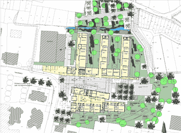
Planungsinhalte: Die geplante Schule und
Kindertagesstätte fügt sich in die gegebene Hangsituation
unmittelbar am Ortsrand von Oberursel-Oberstedten ein und steht mit
seiner Gebäudekubatur im Kontrast zum Freiraum. Die Freiraumgestaltung
nutzt die Höhensituation und schafft auf verschiedenen Ebenen
Spiel- und Aufenthaltsbereiche für die unterschiedlichen Altersgruppen.
Der angrenzende Landschaftsraum wird mit seinemn freien Baumstrukturen
bis in die kammartig aufgefächerten Höfe der Schule weiter
geführt. |
 | |